SUBCONCESSÃO DO BAIXO ALENTEJO

Pontes, Fiscalização e gestão de obra, Geologia e geotecnia, Topografia e cartografia

SISTEMA DE ABASTECIMENTO DE ÁGUA EM S. MIGUEL E TARRAFAL

Infraestruturas urbanas e saneamento básico, Fiscalização e gestão de obra

REDE DE ABASTECIMENTO DE ÁGUA NA PRAIA E RIBEIRA GRANDE DE SANTIAGO

Infraestruturas urbanas e saneamento básico, Fiscalização e gestão de obra

SISTEMA DE ABASTECIMENTO DE ÁGUA NA PRAIA E S. DOMINGOS

Infraestruturas urbanas e saneamento básico, Fiscalização e gestão de obra

AEROPORTO DE LISBOA - ENTRADAS MÚLTIPLAS

Aeroportos, Fiscalização e gestão de obra, Geologia e geotecnia, Segurança e Saúde

AEROPORTO OSVALDO VIEIRA - REPAVIMENTAÇÃO

Aeroportos, Fiscalização e gestão de obra, Topografia e cartografia

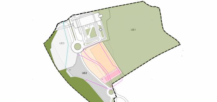
PLANO DIRETOR DA HERDADE DA COMENDA

Ordenamento do território

PLANO DE URBANIZAÇÃO DE WAKO KUNGO

Ordenamento do território

EMISSÁRIO DE SEVER DO VOUGA

Infraestruturas urbanas e saneamento básico

BARRAGEM PRINCIPAL E REDE DE ADUÇÃO

Obras hidráulicas e barragens

PLANO TURÍSTICO DE VALE DOS REIS

Ordenamento do território

GARES RODOVIÁRIAS EM SANTIAGO

Infraestruturas rodoviárias, Infraestruturas urbanas e saneamento básico, Serviços complementares

AVENIDA JULIUS NYERERE

Infraestruturas rodoviárias